Ufficio in vendita

Forlì, Via leonilde Iotti - Ronco
€ 175.000
143 Mq 143 Mq
1 bagno 1 bagno

Ufficio in vendita

Forlì, Via leonilde Iotti - Ronco

Descrizione annuncio

RONCO – VIA LEONILDE IOTTI 6

UFFICIO ATTUALMENTE LOCATO CON OTTIMA REDDITIVITA' ANNUALE!

Tecnocasa propone in vendita una splendida soluzione ideale per professionisti e imprese che cercano un ufficio moderno, funzionale e con ampi spazi nella zona di Ronco, a pochi minuti dal centro di Forlì.

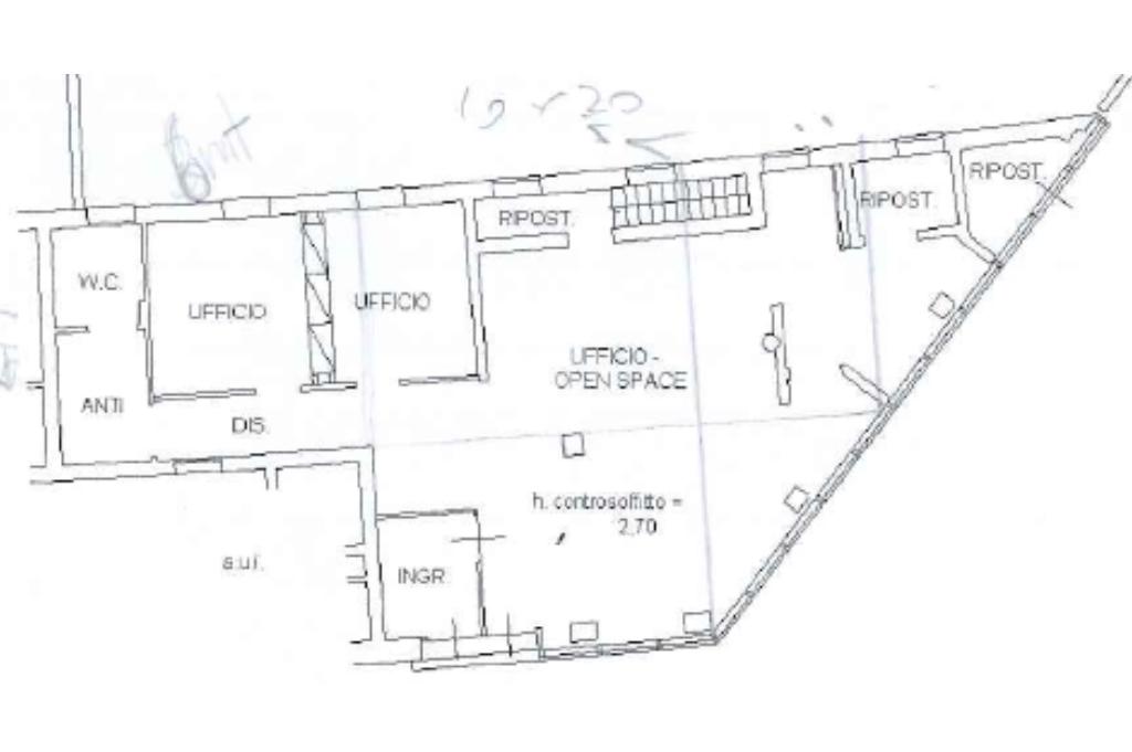
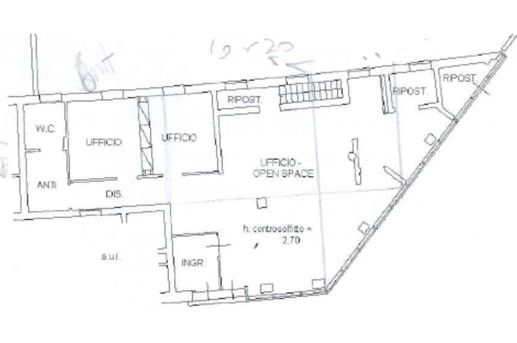
L’immobile, inserito in uno stabile a destinazione mista residenziale e terziaria, si sviluppa su due livelli per una superficie complessiva di 143 mq.

PIANO TERRA:
Spazio ampio, luminoso e ben distribuito, ideale come ufficio, studio professionale o sede operativa. Le ampie vetrate garantiscono visibilità e luce naturale durante tutto il giorno, creando un ambiente accogliente e rappresentativo per clienti e collaboratori.

PIANO INTERRATO:
Collegato internamente, offre un locale ideale come autorimessa, archivio o magazzino. La comodità di accesso e la presenza di un vano tecnico consentono un utilizzo estremamente versatile in base alle esigenze lavorative.

All’esterno, la proprietà dispone di 8 posti auto scoperti esclusivi, che garantiscono un grande vantaggio per clienti e dipendenti.

La posizione, in una zona tranquilla e ben servita, rende l’immobile perfetto per studi professionali, uffici di rappresentanza o attività di servizi.

Punti di forza:

Ingresso indipendente e accesso comodo dal piano strada

Impiantistica autonoma e a norma

Ottima visibilità e facilità di parcheggio

Ambienti personalizzabili in base all’attività

Un’ottima opportunità per chi cerca uno spazio pronto all’uso, con grande comodità di accesso e dotazioni rare nel mercato di oggi.

Ideale anche come forma di investimento!

Per informazioni e visite contattateci al numero 0543 481334 oppure al 338 933664 – Rif. Franco Landini

Mostra tutto

Nelle vicinanze

Trasporto pubblico Trasporto pubblico
Villa Selva
Villa Selva
2,2 Km
Trasporto pubblico
1,0 Km
Scuole Scuole
ENAV
1,5 Km
Istituto Tecnico Aeronautico Statale
1,5 Km
Ingegneria
1,6 Km
Scuole
1,6 Km
Enaip Forlì
2,6 Km
Farmacia Farmacia
Farmacia Malpezzi
2,8 Km
Farmacia
2,8 Km
Ospedali Ospedali
Ospedali Privati Forlì "Villa Igea"
2,5 Km
Supermercati Supermercati
Famila Market
610 m
Conad Ronco
640 m
Lidl
1,6 Km
Conad Stadium
2,5 Km
Famila
2,8 Km
Negozi Negozi
Frutta Piu'
150 m
Panificio Genovese
580 m
Negozi
1,8 Km
Bar Bar
Bar Amici Miei
280 m
Cobà
1,8 Km
Bar
2,5 Km
Baracca cafè
2,9 Km
Ristoranti Ristoranti
I Matti anni 30
200 m
Monte Fuji
410 m
Ristorante Pizzeria Canario 78
590 m
Ristorante Pizzeria "Il Fienile"
1,4 Km
CASA LA CORTE
1,4 Km
Mostra tutto

Caratteristiche

Rif.:
61137821
Piano:
Su più livelli
Posti auto:
8
Condizionamento:
Autonomo
Ascensore:
No
Riscaldamento:
Autonomo
Mostra tutto
Prezzo Prezzo
€ 175.000
Rata mutuo Rata mutuo
€ 831 / mese
Proponi il tuo prezzoProponi il tuo prezzo

Classe Energetica

E
E
E
E
E
E
E
E
E
Riscaldamento:
Autonomo
Tipo impianto:
Ad aria
Tipo alimentazione:
Aria

Ti interessa visionare l'immobile?

Fissa un appuntamento  Fissa un appuntamento

Richiedi informazioni

Clicca su Leggi per aprire l'informativa
* Questi campi sono obbligatori

Calcola il tuo mutuo

Semplice e senza impegno
Anticipo

( % )
Mutuo

( % )

pochi semplici passi

inserisci i tuoi dati
Questionario completato
Grazie per aver richiesto un appuntamento senza impegno con un nostro Consulente del Credito e Assicurativo.

Hai inserito correttamente tutti i dati necessari e a breve riceverai una e-mail con un link da convalidare per inviare i tuoi dati.
Affiliato
Tecno Immobiliare Sas
Viale Risorgimento, 234 47100 Forlì (FC)

Il nostro staff


  • Franco Landini
    Affiliato

  • Stefano Bezzi
    Affiliato

  • Lorenzo Liverani
    Collaboratore

  • Franco Maggiori
    Collaboratore
Viale Risorgimento, 234 47100 Forlì (FC)
Zona: Forlì Risorgimento–Cò Ossi–Piscina–San Martino–Cerchia–Ronco–Vecchiazzano–Cava
Mostra su mappa
Orari: Dal lunedi al venerdi 9:00 - 13:00 e 15:00 - 19:00 Sabato 9:00 - 12.30 su appuntamento
Affiliato
Tecno Immobiliare Sas
Viale Risorgimento, 234 47100 Forlì (FC)

2026 Tecnocasa Franchising S.p.A. - P. IVA 08365160152 - Via Monte Bianco 60/A 20089 Rozzano (MI). Ogni agenzia ha un proprio titolare ed è autonoma. Privacy policy | Policy utilizzo | Cookie policy